| Author |
Message |
|
taywill
|
Post subject: Coordination Posted: Thu Apr 28, 2016 7:08 am |
|
Joined: Mon Jan 19, 2015 7:31 am Posts: 4
|
|
We recently had a main on an MDP trip because we had arcing in a piece of equipment. The main is a 4kA breaker set at 3600 LTD. There is a 1000A breaker (of which i don't know the specs) and a 1200A fuse between the piece of equipment and the main. I have attached the TCC for the fuse and breaker and as far as I understand coordination they should be good. Can anyone help explain how this could have happened?
| Attachments: |

TCC.PNG [ 55.52 KiB | Viewed 4095 times ]
|
|
|
| Top |
|
 |
|
PaulEngr
|
Post subject: Re: Coordination Posted: Thu Apr 28, 2016 9:43 am |
|
| Plasma Level |
 |
Joined: Tue Oct 26, 2010 9:08 am Posts: 2178 Location: North Carolina
|
|
Some of your terminology is not clear but if I understand correctly you have a circuit breaker (Masterpact) with a fuse and another circuit breaker on the load side, and the question is how/why the circuit breaker can trip before the fuse and wondering why you had a case of an apparent loss of coordination.
What are your estimated fault currents, both for short circuit and for arcing. At least if you knew these (and recognizing they are estimates) tells us if we're working in the instantaneous or the long term trip range.
The first and most obvious consideration once we've gotten past this point is that the fuse is shown as only a single line while the circuit breaker which is clearly an electro-mechanical one or at the very least a very early electronic trip unit is shown with a trip range. This is opposite most TCC's which nearly always show fuses with a range and circuit breakers as lines. So they might actually be too close together and you might have miscoordination just because the fuse setting is too close to the circuit breaker.
Second when is the last time that the circuit breaker was actually serviced and tested? Although the typical concern for circuit breakers is that they trip too slowly, this is not always what happens. Older thermal trip units and dash pots in particular and pretty much anything relying on a calibrated spring has a tendency to trip either way too slowly or way too quickly. You definitely cannot assume especially with older equipment that malfunctions always result in tripping too slowly. In my experience it tends to be roughly 25% of them go the other way and trip way too quickly, even falling below the long term trip setting. The software only predicts performance of a properly functioning breaker, not one that has some age on it and doesn't perform to specification. Considering that you're talking about a 4,000 A frame circuit breaker, I'm thinking that probably the incident energy rating is so high that everyone is scared to even get close to it in today's environment and as a result they've been letting it just sit there rusting away.
Finally you may need to dig into the details of the circuit breaker trip unit itself. So far the data is only for phase-to-phase faults while arcing faults typically start out at least as phase-to-ground faults. If the circuit breaker has ground fault detection, phase imbalance detection, negative sequence detection, or even under/over voltage detection it could easily trip without the fuse ever detecting a fault at all.
|
|
| Top |
|
 |
|
taywill
|
Post subject: Re: Coordination Posted: Thu Apr 28, 2016 1:38 pm |
|
Joined: Mon Jan 19, 2015 7:31 am Posts: 4
|
|
Thanks Paul! The available fault current is 25kA but I think you hit the nail on the head with the ground fault detector... Is there anything I can do about it?
| Attachments: |

tcc gfd.PNG [ 60.53 KiB | Viewed 4085 times ]
|
|
|
| Top |
|
 |
|
wbd
|
Post subject: Re: Coordination Posted: Thu Apr 28, 2016 2:29 pm |
|
| Plasma Level |
 |
Joined: Wed May 07, 2008 5:00 pm Posts: 881 Location: Rutland, VT
|
PaulEngr wrote: The first and most obvious consideration once we've gotten past this point is that the fuse is shown as only a single line while the circuit breaker which is clearly an electro-mechanical one or at the very least a very early electronic trip unit is shown with a trip range. This is opposite most TCC's which nearly always show fuses with a range and circuit breakers as lines. Interesting. The majority of TCCs that I have seen/created always has a trip range for breaker and fuses. Some fuses do show as a single line but majority have a range. I also took a quick look at the curves in the IEEE Buff, Blue, and Red books and only saw TCCs with a time range for breakers.
_________________ Barry Donovan, P.E. www.workplacesafetysolutions.com
|
|
| Top |
|
 |
|
stevenal
|
Post subject: Re: Coordination Posted: Fri Apr 29, 2016 8:38 am |
|
Joined: Tue Jan 13, 2009 5:00 pm Posts: 630
|
|
When fuses are shown as a range, the area is between the minimum melt (or damage) curve and the maximum clearing curve. Use the lower melt curve to coordinate with downstream devices, and the clearing time to coordinate with upstream devices. Presumably, the curve shown is the clearing curve.
When tightly coordinating a main with a feeder, it may be necessary to consider the loads on the un-faulted feeders. This will add to the current seen by the main, and have the effect of shifting the curve left.
Also, consider at the 5000 A shown, you are in the sub-cycle range on a curve that assumes symmetrical current. A bit of DC offset will cause the zero crossing (and therefore interruption) to be delayed.
|
|
| Top |
|
 |
|
PaulEngr
|
Post subject: Re: Coordination Posted: Fri Apr 29, 2016 9:41 am |
|
| Plasma Level |
 |
Joined: Tue Oct 26, 2010 9:08 am Posts: 2178 Location: North Carolina
|
|
I would still take the opportunity to test the circuit breaker first and foremost just to be sure. All breakers have a finite life in terms of how many heavy faults they are designed to withstand before they fail and if you haven't tested it, this is a good opportunity to do so.
As to what you can do about ground fault...a fuse is inherently a single phase device. Simply put, a fuse as such can't really trip on ground fault. Right now based on your description, you have precisely one protection zone for ground fault and that's everything tied to the 4,000 A frame circuit breaker. There is no coordination to worry about, right?
Now let's delve into why that pesky ground fault protection is there in the first place and why NEC requires it on any system above about 1,000 A or so (the exact requirement has changed from one edition to the next over time).
Let's say you have a dead short to ground on your system. Then if you said 25 kA is a dead short phase-to-phase, the ground fault is 14.4 kA. Working backward from here this means that the resistance through the grounding and bonding must be under 277 / 14,400 = 0.02 ohms. And even if we consider a high enough ground fault to trip the system on the long term trip setting of 1200 A (taking the fuse case), we need no more than 277 / 1200 = 0.23 ohms resistance through the grounding wiring. If your wiring met these requirements then it is possible that the phase overcurrent protection (the fuses as well as the circuit breaker) could provide adequate phase fault as well as ground fault protection. If you were down at the utilization level of your system with say a 15 A circuit breaker then these requirements are much more modest and more importantly, reasonable. That's why we don't require ground fault protection for low current circuits...the phase fault protection does double duty.
So if you follow NEC to the letter and do it as cheaply as possible, you'd put ground fault protection on the primary distribution breakers only that are say 1,000 A or larger and nothing on the rest of the system. Where does this leave us? We have huge protection zones and a single fault anywhere can be like trying to find a needle in a haystack, to say nothing of the problems it causes by tripping half the plant off.
The answer is that you really should calculate your potential ground fault current at pretty much every level. Somewhere around 100 A is the point where ground fault current will not trip the phase protection circuit any more and you need ground fault protection everywhere above this level. So obviously your fuses are simply not going to work and this is also true for the unknown/unnamed circuit breaker. Phase protection will not double as ground fault protection until we get down to the very smallest protective devices in the system.
Then we come to coordination of ground fault breakers. You need to coordinate ground fault circuits. In most cases ground fault circuits are very simple without all the complicated trip curves. Ground fault coordination is almost always based purely on time but then we come to the next issue.
With a solidly grounded system the ground fault current is very large and can cause a lot of damage. Thus interruption needs to happen as quickly as possible to avoid severe damage so coordination is simply not practical to do. I have never seen any attempts to coordinate solidly grounded systems on ground fault. The only "practical" alternative in a solidly grounded system is to use zone selective relaying. And I'm not saying it's not practical because it requires pulling two wires from every downstream circuit breaker back to the upstream circuit breaker and it requires an inhibit input function on the upstream circuit breaker so that zone selective relaying can work. Between installing the extra wiring and having the special feature in the circuit breakers, zone selective relaying is not realistic for a retrofit and often not practical even on new installations.
However there are three more choices available for grounding. The system can be ungrounded. This has the disadvantage that ground fault detection (phase lights or equivalent) is necessary and there is essentially no ground fault current on the FIRST fault so it keeps everything running. But the disadvantage is that during an arcing fault the system turns into a voltage multiplier and shreds the insulation in your motors, decreasing motor life by a factor of 400%. The second disadvantage is that it's very difficult to find the fault. The only way to do it is to go around the plant opening and closing breakers and disconnects until you locate the fault...not good. There are various "fault finders" available but from practical experience, they are unreliable at best. The overall conclusion here should be that ungrounded systems have a terrible total cost of ownership and drastically decrease reliability despite the initial impression that they appear to be just the opposite at first glance.
The second two options are high and low resistance grounding. In this case a resistor limits ground fault current. This means that we have fault current so we can actually coordinate and trip automatically instead of relying on personnel to go around operating all the breakers and disconnects to isolate the ground fault. The grounding current automatically drains the system capacitance so even though fault voltages are a little elevated compared to solidly grounded systems, they are easily manageable and don't cause destruction like ungrounded systems. If you are unfamiliar with this, resistance grounding is very popular depending on what country you live in and it is also used extensively in medium voltage systems in all countries, but it is relatively uncommon in the U.S. in low voltage (480 V) systems. In a high resistance system I like to use 10 A for 480 V systems but at least according to IEEE standards essentially anything below 50 A is a "high resistance" system. In a low resistance system the standard currents are either 100 or 400 A with 400 A being the most common. With low resistance the resistor as well as the wiring can survive for a short period of time (2-10 seconds) so there is adequate time for coordination but it still has to be interrupted as quickly as possible. With a high resistance system, the current is less than the normal operating current even on the smallest (#14) wiring and with either system transients are larger than a solidly grounded 480 V system (maximum of about 120% to 140%) but are generally tolerable. So with a high resistance system, coordination is trivially easy to do. As a bonus equipment destruction is minimal in the event of a ground fault and arcing faults can't be sustained (self-extinguishing). So it eliminates over 90% of potential arc flash events from ever occurring.
What is required to upgrade? First, the resistor has to be installed. Resistors for this service fall under IEEE Std. 32. The resistence can be calculated as <line-to-line voltage>/sqrt(3)*<desired current> in ohms but generally the resistors are simply specified with the voltage and current so one just needs to order a 10 A resistor. There is a lower limit on this. The current needs to be at least 300% of the system charging current. You can either measure this (read what your ground fault current is currently) or estimate it. If you go below this value the grounding tends to act more like an ungrounded system. If you order a "system" (such as iGard) it will run several thousand dollars but if you order just the resistor from say Post Glover, it will run a few hundred dollars at most including an enclosure (wire mesh...need cooling for these!) That leaves the circuit breakers. Trip settings are typically set to 40% of the maximum current or 4 A in this case. You will need to have a ground fault trip at each and every zone that you want set to the same trip setting but with different time limits. So at the lowest level (say large motor starters) it may trip in 1 second, adding 1-2 seconds for each additional "level" above this so that breakers are coordinated with respect to time delays. A 4 A fault will appear as a 4 A fault to every breaker upstream of the fault all the way back to the transformer.
As to breakers, you can get ground fault relay modules for electronic trip units for motor overload relays that are fairly inexpensive. As an example they are available from Allen Bradley in their E1Plus line and these overload relays are actually less expensive than a eutectic or bimetallic overload relay even though it's a much more reliable and precise electronic trip unit. Be careful with the E1Plus in particular though...you MUST buy the external reset switch for it or the ground fault module will never reset without taking power off it. Other manufacturers have similar equipment. For circuit breakers for draw-out breakers you can buy retrofit kits using the Utility Relay Company replacement trip units. For molded case and similar applications you may want to look at either the GE Spectra RMS series or ABB's circuit breakers. Both are pretty reliable and have electronic trip units that are equal to or cheaper than their thermal-magnetic counterparts all the way down to around 100 A frame sizes, and can do ground fault tripping very easily.
Finally and this is the one and only disadvantage of resistance grounding, all single phase line-to-ground loads need to be removed and put on isolation transformers. This means no 277 lighting (480 V or operate off a seperate transformer). In practice this is usually a minor nuisance. Note that this is what the text books say. What I'm about to say is heresy but in practical experience you can have some single phase loads such as CPT's feeding motor starter circuits but they contribute to the ground fault current and thus the size and number has to be minimal or they will cause nuisance tripping.
Personally I also like to run a small sensor resistor or a PT (voltage transformer) in parallel with the resistor and use this voltage signal as a backup protection set to 60% or 6 A in this case. The purpose of this second relay is primarily so that in the event that the resistor faults leaving you with an ungrounded system this relay will fire. It's very cheap insurance that the critical part of your grounding system doesn't fail.
I know you can easily see all the money involved here. I hate to be the bearer of bad news but unfortunately this is the reality. I have seen a huge number of similar systems which are poorly designed. As famous Canadian TV reality show host Mike Holmes says, Code Minimum is just that...it might be the minimum but it's not right.
On a newer installation it's quite easy to ensure that all these things are incorporated into the design from the beginning and the extra expense is not great, compared to retrofits which frequently require replacing multiple circuit breakers. Microprocessor based circuit breakers have 3 CT's in the back and a small circuit board controlling the circuit breaker. These are more reliable in terms of trip units and there is almost never calibration drift. The cost is essentially fixed so that as the breaker increases in size the higher cost of the microprocessor trip unit quickly beats out the thermal-magnetic competition. What's more it is easy to do a vector sum of the 3 currents or add a 4th CT to measure ground fault current and provide a couple extra settings to program it for ground fault tripping. High resistance grounding also saves on wiring costs since grounding only has to (1) maintain code minimum standards and (2) carry a maximum of say 10 A so smaller wiring can be used in many cases. Then the benefits of much less damage after a fault, drastically less arcing fault damage in most cases, and less stress on the system for most faults translates into lower maintenance costs down the road.
|
|
| Top |
|
 |
|
wilhendrix
|
Post subject: Re: Coordination Posted: Mon May 02, 2016 7:32 am |
|
Joined: Tue Jan 19, 2010 2:35 pm Posts: 175
|
|
Regarding ground fault trips, did you find a large piece of equipment with a tripped fuse or breaker? May be a motor had shorted? Those are often the culprits with ground fault trips. But ground fault units can also fail to operate correctly. I've found breakers with internal CT's that were cracked and had failed. If you have a testing company you work with, I'd ask if they can check the ground fault unit? Generally the process means shutting off the gear with the ground fault, but I don't know your sites set up so. They will most likely want to do an insulation test on the gear. That makes lots of sense. Doing that that means they might find accidental grounds. Those accidental grounds can create problems too with proper ground fault operation. Once the testing is done and everything has passed, you can feel assured the ground fault will operate correctly. But now you have to determine the proper setting for your ground fault. We sometimes see ground faults set either at the lowest or highest possible setting. Generally, the owners don't know this wasn't addressed until after the main breaker's tripped. If you're running an industrial operation, tripping the main can be a big deal. Processes can be screwed up and that often costs money, plus site safety can be compromised.
|
|
| Top |
|
 |
|
taywill
|
Post subject: Re: Coordination Posted: Mon May 02, 2016 9:22 am |
|
Joined: Mon Jan 19, 2015 7:31 am Posts: 4
|
|
Thanks everyone! My understanding is there were heating elements that caused the fault. Would it be reasonable to assume the elements shorted to ground and caused a ground fault? If so it seems to me the lack of secondary ground fault equipment would be to blame from what Paul said but I have to read that a couple more times to completely understand all of it.
|
|
| Top |
|
 |
|
Voltrael
|
Post subject: Re: Coordination Posted: Mon May 02, 2016 10:44 am |
|
| Sparks Level |
 |
Joined: Tue Nov 12, 2013 6:31 am Posts: 238 Location: Port Huron, Michigan
|
taywill wrote: Thanks everyone! My understanding is there were heating elements that caused the fault. Would it be reasonable to assume the elements shorted to ground and caused a ground fault? If so it seems to me the lack of secondary ground fault equipment would be to blame from what Paul said but I have to read that a couple more times to completely understand all of it. I think there's a very good chance that was what was going on.
|
|
| Top |
|
 |
|
PaulEngr
|
Post subject: Re: Coordination Posted: Tue May 03, 2016 10:42 am |
|
| Plasma Level |
 |
Joined: Tue Oct 26, 2010 9:08 am Posts: 2178 Location: North Carolina
|
|
Heating elements and motors are notorious for ground faults because 90%+ of the failure modes for these devices end up appearing as a ground fault. For instance with a motor when the bearings wear out the shaft only has to sag about 1 mm before it wipes out the coils resulting in a ground fault. Insulation in a heater coil that cracks appears as a ground fault in a similar way.
Another possible interim solution (not ideal but may be less expensive) is to put in an isolation transformer (e.g. 480:480 delta-wye). On the secondary side establish a new ground and apply protection (phase and ground fault) on the secondary side. When you do this the zero sequence current (ground fault current) on the secondary side is isolated from the primary side. If the transformer and load aren't very big in the first place then ground fault protection is not necessary and you can run with a solidly grounded secondary system with a relatively inexpensive circuit breaker or fuses for protection. It is usually not a good comprehensive solution but can be beneficial if you have a small number of problematic loads.
|
|
| Top |
|
 |
|
taywill
|
Post subject: Re: Coordination Posted: Tue May 03, 2016 12:06 pm |
|
Joined: Mon Jan 19, 2015 7:31 am Posts: 4
|
|
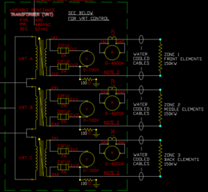
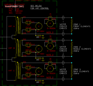
Your input on an isolation transformer as a possible solution made me realize the elements are heated by a Variable Reactance Transformer (VRT). The drawing doesn't show a ground on the secondary side (other than for the voltmeter). If there truly is no ground on the VRT is it possible to add one to accomplish the same thing? Does it currently not exist because it would cause problems?
| Attachments: |

VRT.PNG [ 89.78 KiB | Viewed 4058 times ]
|
|
|
| Top |
|
 |
|
PaulEngr
|
Post subject: Re: Coordination Posted: Wed May 04, 2016 8:30 am |
|
| Plasma Level |
 |
Joined: Tue Oct 26, 2010 9:08 am Posts: 2178 Location: North Carolina
|
The transformer is effective the same thing as 3 separate single phase transformers except that it is in a single housing. The front end is wired in delta but single the secondary coils are not wired together at all this makes it actually three single phase transformers in a wye-wye configuration. I recognize that the primary side is wired as delta but since the secondary side is not wired together at all, it simply saves some money to have a single lead to each pair of coils and since it would be an inexpensive design modification to a standard delta-wye transformer to order it with 6 secondary leads instead of purchasing three individual transformers. Note that right away this configuration not only passes zero sequence (ground fault) currents from secondary to primary but also it creates circulating currents within the transformer that cause excessive heating due to imbalances either between coils or between loads. There are grounds clearly on the diagram just past the fuses and connected via a resistor. If you don't have these hooked up then you will have an ungrounded system. If this is the case on the first ground fault the system will continue to operate although if you measure your phase voltages to ground one of them will be at or near zero. On the second fault you will get a line-ground-line fault across the ground which due to the high impedance of the grounded circuit often won't trip the fuses and will cause a lot of damage. If the grounds are hooked up then each of the 3 phase legs is individually terminated to ground via a 100 ohm resistor and the output voltage according to nameplate has a maximum of 52 V. So with 52 / 100 = 0.52 A, it's definitely a high resistance grounded system and pretty much operates as the above except that on the first ground fault a low current flows instead of no current at all. This results in zero sequence current (ground fault) being passed right through the transformer and onto the primary side which was your concern but there are additional problems. At this point we have to consider the current on the secondary side and the size of the fuses. There are two clues. First it states "water cooled cables" on the diagram and second with three individual 150 kVA transformers (450 kVA / 3) with a 52 V nominal secondary voltage, we get about 2.9 kA as a maximum current. No doubt the fuses are vastly larger than the 0.5 A ground fault current that we would expect. With such a configuration, ground faults will not be detected until the second ground fault forms on another phase, resulting in a phase-ground-phase fault. These are higher current than single phase-ground faults and not quite as high as 3 phase bolted faults but again, unlikely to cause a trip but will do a lot of damage while they persist before burning off enough equipment. This is inherent in the design. During this fault though again...it gets passed over to the primary (480 V) bus and this time has a high likelihood of being able to trip an upstream ground fault protection circuit. In terms of correcting the problem, there are a couple ways around this. The first one would be to put a voltage meter across the 100 ohm resistor. Thus ground fault current can be directly read since I=V/R...the current is equal to the voltage divided by 100. The meter could also be replaced with a sensor/relay that directly triggers an alarm and/or trips on excessive current. Along the same lines shorting all 3 coils of the transformer together and connecting this connection through a single resistor simplifies the ground fault detection/tripping and has a secondary advantage that this makes the transformer a true delta-wye. The cabling will absorb the zero sequence currents within the transformer and no zero sequence currents will be passed to the primary side of the transformer. The second method relies on another issue with this design. For the U.S. at least, NEC 250.20(B) requires the system to be grounded. 250.20(D) does not apply (voltage is too low), and it doesn't fall under any of the exceptions in 250.21(A) or 250.22. There is also not an exception anywhere in Article 427. If this applies to your system, then the simple solution is to short out the resistors altogether and remove them from the circuit, although this may also require increases in cable dimensions. At that point you will be better off jumpering one phase of each of the coils together to form a true wye-connected secondary. Thus your problems are solved except for the fact that a ground fault in the resistance heating elements is probably going to be more destructive than it has been in the past. You can still implement the ground fault relay described above except that in this case it would require a CT on the ground leg(s) of the transformer which would then be tied to a trip mechanism such as a circuit breaker. Article 427 recommends but does not require this for industrial facilities. If you want to actually measure how much ground fault current you have at any point in the system, you can easily do this. First you need a flexible CT adapter for your multimeter. Here is an example from one vendor but pretty much all the major meter vendors carry these things: http://www.extech.com/instruments/produ ... prodid=932To read zero sequence current at any point in your system, wrap the CT around all of the cables in question so for instance you can wrap it around all three 480 V phase leads coming from the power source. If there is a ground current, then I1+I2+I3 will NOT be equal to zero. This is also true in single phase circuits as well...just wrap it around the power and neutral wiring. This is incidentally the principle behind a ground fault circuit interrupter.
|
|
| Top |
|
 |
|
Page 1 of 1
|
[ 12 posts ] |
|
|
You cannot post new topics in this forum You cannot reply to topics in this forum You cannot edit your posts in this forum You cannot delete your posts in this forum You cannot post attachments in this forum
|
|