| Author |
Message |
|
jsoar
|
Post subject: Modeling new equipment. Posted: Thu Feb 06, 2025 8:44 am |
|
Joined: Wed Jun 12, 2024 5:19 am Posts: 33
|
|
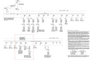
I was asked to provide labels on the new equipment that was installed. I have the utility details, MSBA details and I have the panel details. Do I need to model the whole Switchboard in SKM or can I just model the Utility, MSBA- Main breaker, MSBA and the two new equipment?
| Attachments: |

MSBA.jpg [ 661.79 KiB | Viewed 64204 times ]
|
|
|
| Top |
|
 |
|
mpparent
|
Post subject: Re: Modeling new equipment. Posted: Thu Feb 06, 2025 8:51 am |
|
Joined: Thu Apr 18, 2019 11:42 am Posts: 163
|
|
I think it depends. It looks like you have motor loads hanging off your main switchboard, so those could feed into faults at your new panels. If they are on VFDs, then maybe you don't have to model them as added short circuit contribution (unless they have a bypass, then maybe you do).
Mike
|
|
| Top |
|
 |
|
bbaumer
|
Post subject: Re: Modeling new equipment. Posted: Fri Feb 07, 2025 4:40 am |
|
| Arc Level |
 |
Joined: Fri Jul 08, 2016 10:01 am Posts: 438 Location: Indiana
|
|
I agree with Mike's assessment. That is a small system and wouldn't take long to model. The time consuming part will be getting all the data.
_________________ SKM jockey for hire PE in 17 states
|
|
| Top |
|
 |
|
Page 1 of 1
|
[ 3 posts ] |
|
|
You cannot post new topics in this forum You cannot reply to topics in this forum You cannot edit your posts in this forum You cannot delete your posts in this forum You cannot post attachments in this forum
|
|